Home
Who We Are
About SS Associates
Our Team
What We Do
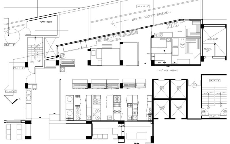
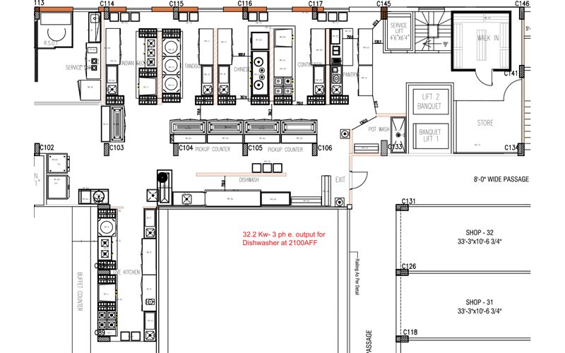
Kitchen Designing & planning
Hospitality Consultancy
Restaurant Consulting
Menu Planning & Food designing
Hotel Management Consultant
Hotel Merger, Acquisitions & Brand affiliation
Why We
Testimonials
Projects
Our Patrons
Contact Us
Projects
We Make Your Dreams Come True
Projects